郡山市東山霊園の自由区画にて、ご予算・ご希望に叶ったシンプルなお墓を建立。カラー図面で完成のイメージを分かりやすく
こんにちは! 福島県一円にて、お仕事をさせていただいております、お墓のTRY(トライ)です。郡山市東山霊園の自由区画にて、ご予算・ご希望に叶ったシンプルなお墓を建立いたしましたので、ご紹介いたします!
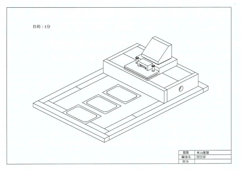
郡山市東山霊園 自由区画 新墓
郡山市東山霊園にて、お墓を新設させていただきました。墓地は既に自由区画をお持ちでした。お考えのご予算があり、その範囲での建墓をご希望でした。お話を伺って、図面とお見積りを作成します。

こちらは、最初にご提案したカラー図面です。まずは、費用面でも抑えられる最小限のシンプルな仕様ということで、左の図面とお見積もりをご提案しました。ご覧になると、「やっぱり外柵が欲しい」ということでしたので、再度図面を作成しました。

こちらは、次にご提案したカラー図面です。先ほどのお墓に外柵を付けたものです。すると、こちらではご予算をオーバーしてしまうということで、再度調整することになりました。


その後、再度練り直してご提案した図面です。ご予算やご希望に叶うよう、石碑は高さを保ったまま、手間側をスッキリさせた形です。こちらを気に入っていただけて、工事をお任せいただけることになりました。
工事開始です。まずは基礎工事です。土を堀り下げて、基礎を築く準備をします。
砕石を入れて機械で転圧し、地盤をしっかり固めます。
鉄筋を組んで、コンクリートを流し込む準備をしています。奥の木枠は納骨室の下にあたる部分で、土のまま残します。
生コンを流し入れ、撫でているところです。水平器を置いて、高さを確認しながら進めています。霊園の縁石はきちんと水平が取れていないことも多いので、そのままコンクリートを撫でてしまうと水が溜まったりしてしまう可能性もあります。ですのできちんと勾配を取ったり水平を見たりして、確認しながら進めます。
基礎が完成して、お墓の据え付けが始まりました。写真は、外柵の据え付けをしているところです。お墓後方の外柵石を、耐震ボンドをたっぷり使って据え付けています。
お墓の左奥の部分です。角の部分には耐震補強の金具を設置、貼り石の継ぎ目には耐震ボンドを塗布しています。底には水抜き穴も設けています。印は納骨室内の通気口です。写真上側がお墓左の壁石になりますが、そこから写真手前の納骨室まで、換気を良くするための通気口を設けています。できる限り湿気をためず、大切なご遺骨を守るための当店のこだわりです。
完成です! 中国産の松山石という白御影石のお墓です。
「極力シンプルに!」というお客様のご希望を叶えたお墓です。通常ですと墓誌や羽目石などを付けるのですが、そうしたものも一切設けていません。花立も、拝石の一部に組み込んだねじ式のものです。余計な石を使用せず、さっぱりとシンプルに仕上げました。シンプルな中にも、拝石の側面にはぐるりと一周溝を入れました。納骨室を開ける際に指がかかりやすくする機能的な利点もありますが、デザインのアクセントにもなっています。
踏み石です。歩幅に合わせて均等に、歩きやすいよう配置しました。石の真ん中はすべり止め加工をしています。五色の明るい砂利石は、松山石の明るい色合いともぴったりです。
後日、開眼・ご納骨法要を行いました。お客様には「希望通りシンプルでよかった」と喜んでいただけました。シンプルながら石碑部分を高くしたデザインも気に入っていただけました。今回は亡くなったお母様のためのお墓作りでしたが、ようやくご納骨まで無事に終わり、ホッとしたご様子でした。



今回のお客様は当初、ご予算のこともあり、お墓というもののイメージもあまりお持ちではなかったようで、「石を置いておけばいいんじゃないの?」というようなこともおっしゃっていたのですが、初めにとてもシンプルなものをご提案した時、「これだけではちょっと寂しいかな・・・」とおっしゃって、最終的にはお墓の部分を高くしたカラー図面通りで作成させていただくことになりました。当店のカラー図面では、実際のお隣のお墓や周りの様子などを合成してご提案することができますので、お墓が完成した時のイメージを具体的につかむことができます。完成してみたら周りと比べて思ったより小さかった、大きすぎたなど、事前の印象と違ったということがないよう、選んでいただく際の参考にしていただくこともでき、どんな方にもわかりやすいのでご好評いただいています。完成したお墓に、「思った通りだね!」と喜んでいただけるととてもうれしいです^^
お墓の新設に関する記事
●かわいらしいぬいぐるみに囲まれた、あたたかいお墓が完成。華やかで優しいピンク色のお墓と桜の彫刻、郡山市三穂田町にて
●郡山市東山霊園の規格墓地にて、インド産黒御影石のお墓を建立。耐久性のある御影石の納骨室で、末永く安心のお墓
●湿気が溜まりにくく、コンパクトな墓地でも設計しやすい、地上式納骨(丘カロート)のお墓を建立。会津美里町にて
●福島県郡山市にて、デザイン墓石「カーサメモリア」のお墓を建立。インド産RYOとアーバングレー、全面貼り石で維持管理のしやすい安心のお墓
●コントラストが美しい、インド産インペリアルレッド(赤御影石)とPAN(黒御影石)のデザイン墓を建立しました。福島県浪江町のお寺様墓地にて








